















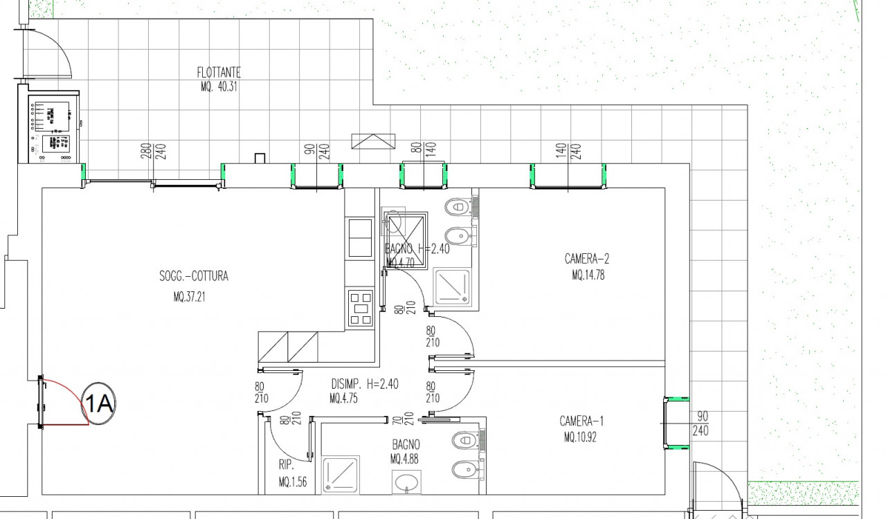
-Appartamento 2 camere con giardino privato: Ingresso, zona giorno separabile di circa 40 mq, 2 bagni finestrati, rip/lavanderia, camera doppia e camera matrimoniale. L’appartamento è dotato di un ampio GIARDINO PRIVATO DI ALMENO 200 MQ, garage e doppio posto auto esterno.
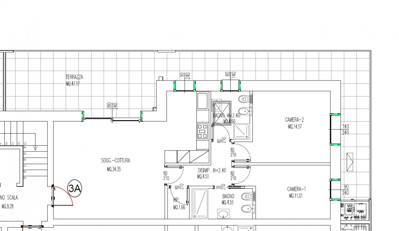
-Appartamento 2 camere con terrazzo abitabile: Ingresso, zona giorno separabile di circa 37 mq, 2 bagni finestrati, rip/lavanderia, camera doppia e camera matrimoniale. L’appartamento è dotato di una TERRAZZO ABITABILE DI 50 MQ, garage e doppio posto auto esterno.
TIPOLOGIA | ||
|---|---|---|
COMUNE | Padova | |
ZONA | Terranegra | |
CAMERE | 2 camere | |
BAGNI | 2 bagni | |
GIARDINI | 1 | |
GARAGE | 1 | |
ANNO | 2026 | |
RIFERIMENTO | TER203 | |
IPE | 0.00/kWh/m2anno
| |
Home » Immobili » appartamento » Terranegra: Nuovi 2 Camere Con Giardini O Terrazze Abitabili
850,00 €
490.000,00 €
165.000,00 €
550,00 €
220.000,00 €
150.000,00 €