





CAMPONOGARA – ATTICO ALL’ULTIMO PIANO SU NUOVA COSTRUZIONE
Proponiamo in vendita un magnifico attico dalle generose dimensioni
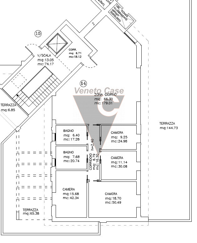
La superficie abitabile si estende su circa 350 mq, l’attico è composto da un ampio open-space soggiorno-cucina che supera i 60 mq, la zona notte comprende 4 camere di cui 2 matrimoniali e 2 bagni.
All’esterno, questo attico vanta due terrazzi privati di 205 mq complessivi; lo spazio ideale dove godere pranzi all’aperto durante le belle giornate o semplicemente rilassarsi ammirando i tramonti in totale privacy.
Classe Energetica A4 – Rif 318-FCAL – EURO 420.000
TIPOLOGIA | ||
|---|---|---|
COMUNE | Camponogara | |
ZONA | Calcroci | |
CAMERE | 4 camere | |
BAGNI | 2 bagni | |
GIARDINI | ||
GARAGE | 1 | |
ANNO | 2024 | |
RIFERIMENTO | 318-FCAL | |
IPE | 0.00/kWh/m2anno
| |
530.000,00 €
420.000,00 €
535.000,00 €
468.000,00 €
660.000,00 €
520.000,00 €