








































In via J. Filiasi, proponiamo Attico di recentissima costruzione inserito in contesto verdeggiante.
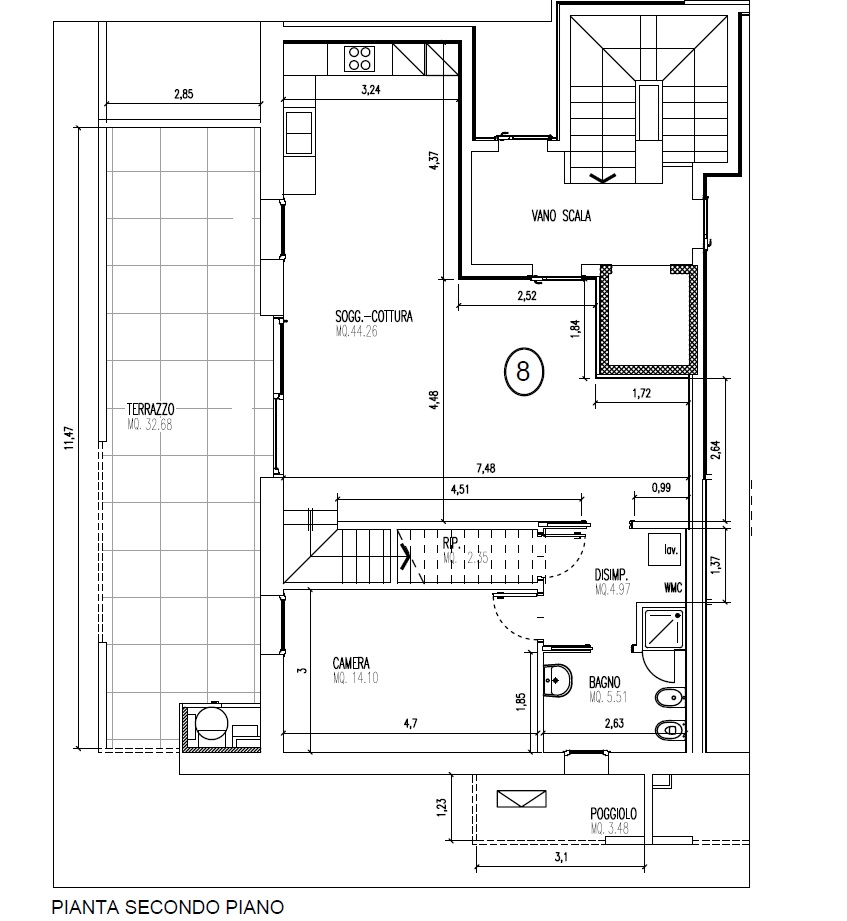
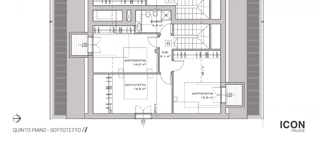
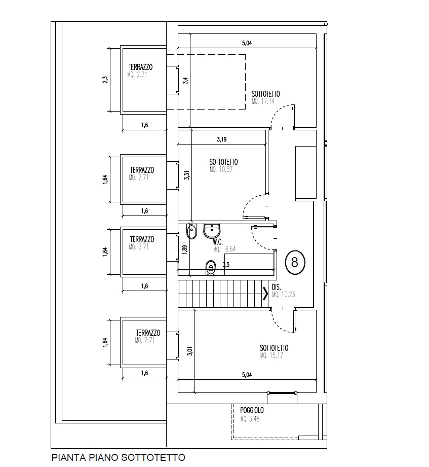
Sviluppato al quarto ed ultimo piano e dotato di ascensore, l’immobile si compone di un ingresso con ripostiglio, zona giorno open space di oltre 50 mq, dotata di un’ ampia vetrata scorrevole con accesso ad un terrazzo abitabile di 82 mq che gode di una vista unica su tutto il quatiere; a completare il piano un bagno finestrato, un ripostiglio ed una camera matrimoniale che può essere usata come studio. Salendo le scale troviamo la zona notte completamente travata a vista, composta da altre 3 camere da letto ed un bagno finestrato. A completare al piano terra troviamo un garage singolo e un posto auto.
TIPOLOGIA | ||
|---|---|---|
COMUNE | Padova | |
ZONA | Forcellini | |
CAMERE | 4 camere | |
BAGNI | 2 bagni | |
GIARDINI | ||
GARAGE | 1 | |
ANNO | 2022 | |
RIFERIMENTO | FOR300 | |
IPE | 28.15/kWh/m2anno
| |
678.000,00 €
530.000,00 €
420.000,00 €
660.000,00 €
520.000,00 €
650.000,00 €