





In tranquillo contesto residenziale di recente realizzazione, proponiamo villetta a schiera su due livelli caratterizzata da ambienti luminosi, spazi ben distribuiti e dotazioni tecnologiche di ultima generazione.
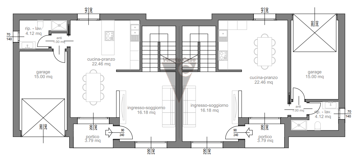
Al piano terra si sviluppa la zona giorno open-space con soggiorno e cucina-pranzo affacciati sul portico e sul giardino privato, ideale per pranzi e momenti all’aperto. Completano il livello un comodo ripostiglio/lavanderia, antibagno, e garage con accesso diretto all’abitazione.
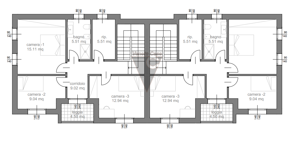
Al piano primo si trova la zona notte, composta da camera matrimoniale, camera doppia, camera singola, bagno finestrato, ripostiglio e loggia coperta.
L’abitazione è progettata nel rispetto dei più moderni standard di efficienza e comfort abitativo:
Impianto fotovoltaico per la produzione di energia elettrica
Ventilazione meccanica controllata (VMC) per il ricambio e la qualità dell’aria interna
Riscaldamento a pavimento per un comfort termico uniforme e consumi ridotti
Tapparelle motorizzate
Infissi ad alte prestazioni e ottimo isolamento termo-acustico
Superficie commerciale: circa 130 mq CLAPESTABILI
Garage privato collegato internamente
Giardino di proprietà
Classe energetica prevista: A4
Soluzione ideale per chi desidera una casa moderna, efficiente e sostenibile, in una zona residenziale tranquilla ma comoda ai principali servizi.
TIPOLOGIA | ||
|---|---|---|
COMUNE | Brugine | |
ZONA | Campagnola | |
CAMERE | 3 camere | |
BAGNI | 2 bagni | |
GIARDINI | 1 | |
GARAGE | 1 | |
ANNO | 2025 | |
RIFERIMENTO | 401-DCAM | |
IPE | 0.00/kWh/m2anno
| |
Home » Immobili » bifamiliare » Villa Bifamiliare Di Nuova Costruzione A Campagnola
200.000,00 €
320.000,00 €
210.000,00 €
390.000,00 €
380.000,00 €
199.000,00 €