


Se stai cercando una casa moderna, efficiente e con spazi esterni, questa nuova bifamiliare in costruzione a Sambruson di Dolo è una soluzione progettata per offrire comfort, design e qualità abitativa.
Inserita in una nuova lottizzazione residenziale composta da abitazioni indipendenti, questa elegante bifamiliare si distingue per le sue linee architettoniche contemporanee, le ampie vetrate e la progettazione degli spazi pensata per la vita quotidiana della famiglia.
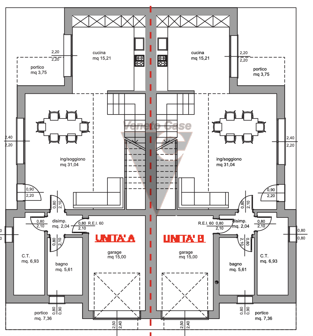
L’ingresso introduce ad una spaziosa zona living open-space, caratterizzata da ambienti luminosi e ben distribuiti.
Il soggiorno dialoga armoniosamente con la cucina abitabile, mentre le grandi vetrate creano continuità tra interno ed esterno affacciandosi sul portico coperto e sul giardino privato, ideali per pranzi all’aperto e momenti di relax.
Al piano terra troviamo inoltre:
• bagno finestrato
• locale tecnico / lavanderia
• disimpegno
• garage collegato direttamente all’abitazione
Il primo piano è dedicato al comfort della famiglia e comprende:
• camera matrimoniale principale
• seconda camera matrimoniale
• camera singola
• bagno finestrato
• ripostiglio
Tutte le camere dispongono di accesso diretto alle terrazze, che donano luminosità agli ambienti e offrono spazi esterni privati.
L’abitazione è progettata per garantire consumi ridotti e massimo comfort abitativo grazie a impianti di ultima generazione:
✔ impianto fotovoltaico da 5 kW
✔ riscaldamento a pavimento
✔ pompa di calore aria-acqua
✔ ventilazione meccanica controllata puntuale
✔ predisposizione aria condizionata
✔ predisposizione antifurto
L’edificio è inoltre isolato con cappotto termico da 14 cm, per garantire comfort in ogni stagione.
Soluzioni che permettono elevato risparmio energetico e qualità dell’aria interna.
Contattaci per ricevere capitolato, planimetrie complete o fissare una visita in cantiere.
TIPOLOGIA | ||
|---|---|---|
COMUNE | Dolo | |
ZONA | Sambruson | |
CAMERE | 3 camere | |
BAGNI | 2 bagni | |
GIARDINI | 1 | |
GARAGE | 1 | |
ANNO | 2026 | |
RIFERIMENTO | 409DSAM | |
IPE | 0.00/kWh/m2anno
| |
680.000,00 €
395.000,00 €
255.000,00 €
385.000,00 €
265.000,00 €
460.000,00 €