

































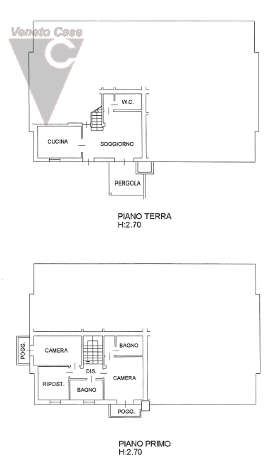
A Piovega di Piove di Sacco è in vendita una porzione di quadrifamiliare di recente costruzione sviluppata su 3 livelli, caratterizzata da ambienti luminosi e finiture di altissimo pregio. Al piano terra l’abitazione si apre su un comodo ingresso che conduce al soggiorno e alla cucina separata; completano il livello l’antibagno e un bagno di cortesia. Salendo al primo piano si trovano due ampie camere matrimoniali, entrambe dotate di uscita sul poggiolo, di cui una con bagno padronale completo di box doccia. Sullo stesso piano sono presenti un altro bagno finestrato con vasca e una camera singola, ideale anche come studio. Proseguendo al piano mansardato si accede ad un accogliente disimpegno che introduce a un’ulteriore camera matrimoniale mansardata, a un ampio bagno con vasca angolare. La proprietà dispone inoltre, al piano terra, di un garage singolo di 18 mq. con accesso diretto all’abitazione, di un posto auto privato interno e di un curatissimo scoperto-giardino esclusivo, pompeiana all’esterno del soggiorno ideale per i vostri momenti di convivialità. L’immobile è dotato di riscaldamento autonomo a pavimento, aria condizionata, allarme perimetrale, infissi in legno con vetro camera, zanzariere e scuri in legno laccato rosso. Ingressi carrai motorizzati e pedonale indipendenti, vialetto privato esterno con ulteriore posto auto. Per ulteriori informazioni o per fissare una visita, contattare l’agenzia.
Classe D – I.P.E. 87,40 kWh/mq anno
Euro 279.000 – rif. PIO-074
TIPOLOGIA | ||
|---|---|---|
COMUNE | Piove di Sacco | |
ZONA | Piovega | |
CAMERE | +3 camere | |
BAGNI | 4 bagni | |
GIARDINI | 1 | |
GARAGE | 1 | |
ANNO | 2014 | |
RIFERIMENTO | PIO-074 | |
IPE | 87.40/kWh/m2anno
| |
Home » Immobili » quadrifamiliare » Porzione Di Quadrifamiliare
279.000,00 €
294.000,00 €
270.000,00 €
375.000,00 €