













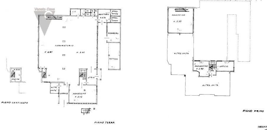
Proponiamo in vendita complesso residenziale composto da due unità abitative e ampio laboratorio.
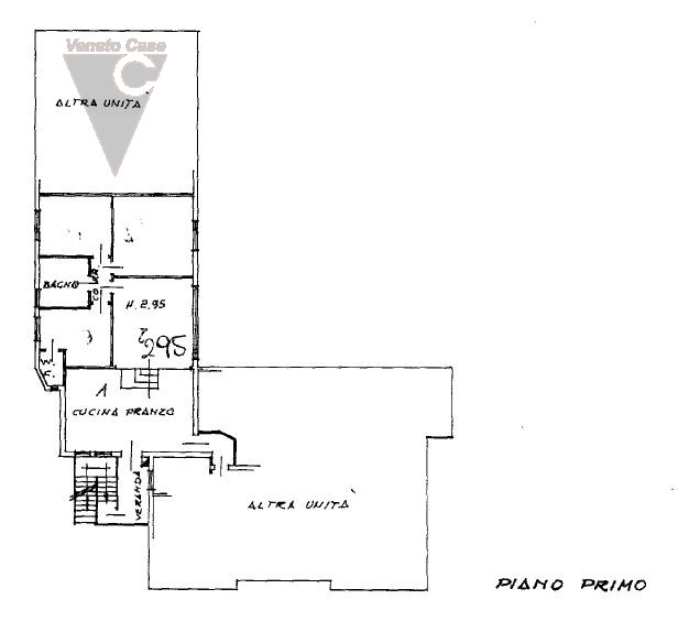
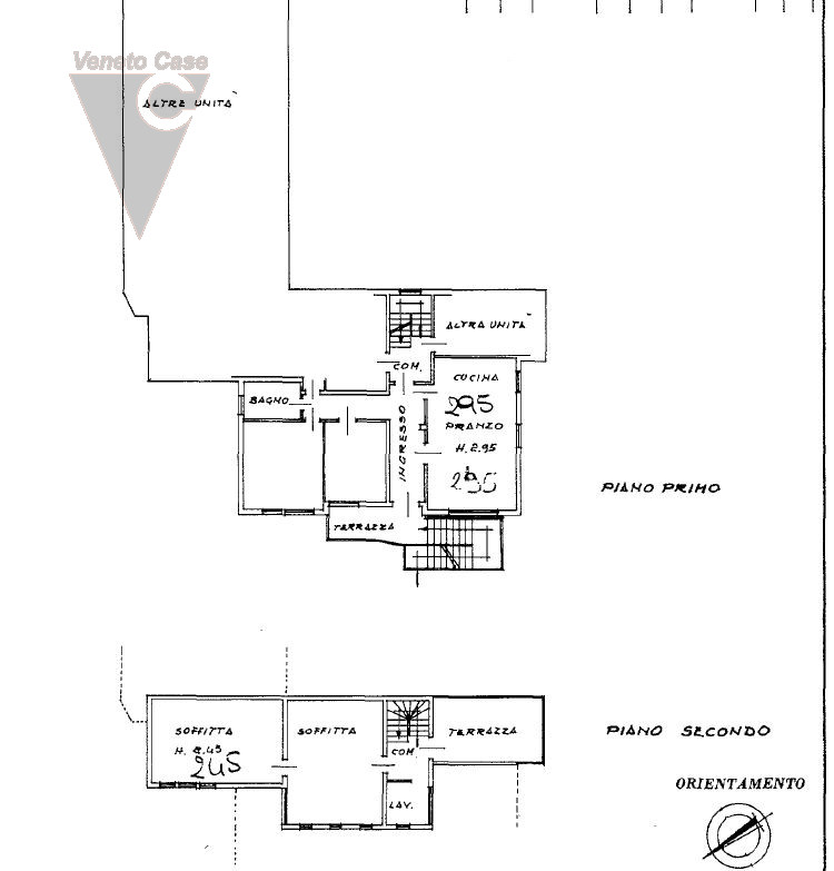
La proprietà si sviluppa in due appartamenti autonomi, uno con 2 camere da letto e uno con 3 camere, entrambi caratterizzati da spaziose zone giorno. Completa la soluzione un capannone ad uso laboratorio di oltre 700 mq, ideale per attività artigianali, professionali o investimento. Il complesso si presenta da ristrutturare, offrendo interessanti potenzialità di valorizzazione e personalizzazione.
TIPOLOGIA | ||
|---|---|---|
COMUNE | Noventa Padovana | |
ZONA | Oltre Brenta | |
CAMERE | +3 camere | |
BAGNI | 3 bagni | |
GIARDINI | 1 | |
GARAGE | 1 | |
ANNO | 1960 | |
RIFERIMENTO | OLTR510 | |
IPE | 372.52/kWh/m2anno
| |
Home » Immobili » Casa Singola » Oltrebrenta – Plurifamiliare Con Laboratorio
500.000,00 €
345.000,00 €
395.000,00 €
590.000,00 €
450.000,00 €
180.000,00 €