






































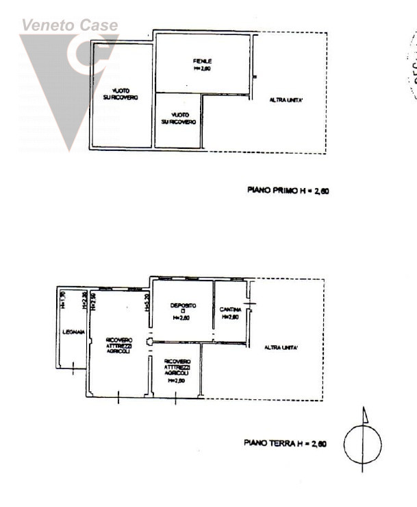
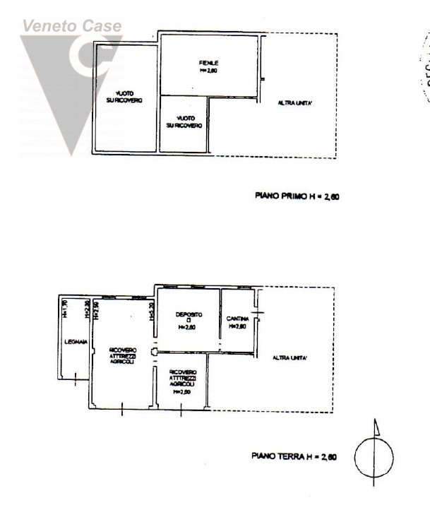
Proponiamo in vendita a Codevigo una casa singola disposta su due livelli, ideale per chi cerca ampi spazi e indipendenza. Al piano terra si accede tramite un ingresso che conduce a una camera, alla sala da pranzo, a un cucinino separato e a un bagno di servizio. Dalla zona giorno è possibile accedere direttamente a un locale che un tempo ospitava la stalla di 40 mq e all’ex-fienile di 15 mq, ora utilizzabile come ulteriore spazio da personalizzare. Al primo piano si sviluppa la zona notte, composta da un disimpegno, tre camere da letto e un bagno finestrato. La proprietà è completata da uno scoperto privato di 850 mq e da 3 magazzini esterni staccati dal corpo principale dell’abitazione per un totale di 90 mq. Una soluzione interessante, ideale per chi desidera vivere in un contesto tranquillo, con la possibilità di gestire spazi esterni e ambienti accessori in base alle proprie esigenze. Totale lotto 1.100 mq.
Classe G – I.P.E. 264,85kWh/mq anno
Euro 189.000 – rif. COD-014
TIPOLOGIA | ||
|---|---|---|
COMUNE | Codevigo | |
ZONA | ||
CAMERE | +3 camere | |
BAGNI | 2 bagni | |
GIARDINI | ||
GARAGE | 1 | |
ANNO | ante ’67 | |
RIFERIMENTO | COD-014 | |
IPE | 264.85/kWh/m2anno
| |
Home » Immobili » Casa Singola » Casa Singola Su 2 Livelli
255.000,00 €
380.000,00 €
500.000,00 €
390.000,00 €
500.000,00 €
590.000,00 €