





























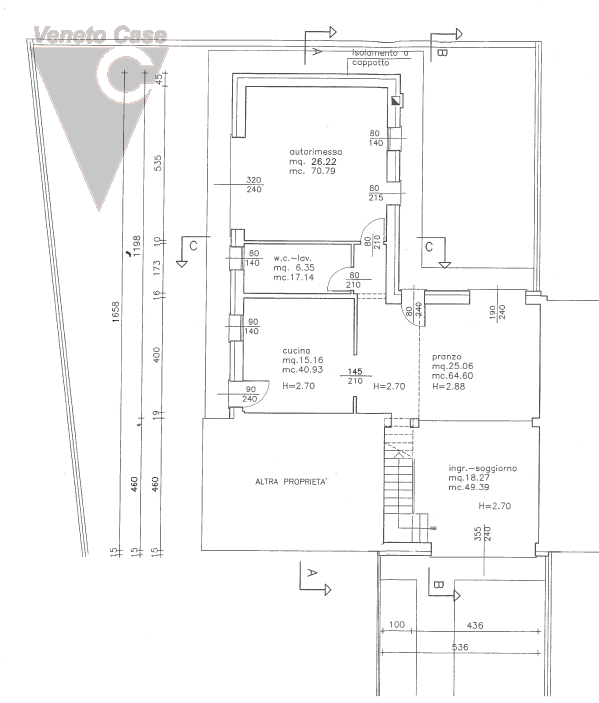
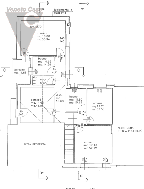
Nel cuore della tranquilla e servita località di Busa di Vigonza, proponiamo porzione centrale di casa a schiera, attualmente al grezzo avanzato, dalle generose dimensioni (circa 180 mq), perfetta per chi desidera indipendenza e spazi ampi in un contesto residenziale curato. L’abitazione si sviluppa su due piani, il piano terra è composto da una luminosissima zona giorno con cucina separata, bagno finestrato e garage doppio in larghezza. Al piano superiore si sviluppa la zona notte con quattro ampie camere da letto e due bagni. Completa la proprietà un giardino privato fronte-retro. Soluzione ideale per famiglie che cercano comfort e indipendenza.
TIPOLOGIA | ||
|---|---|---|
COMUNE | Vigonza | |
ZONA | Busa | |
CAMERE | 4 camere | |
BAGNI | 3 bagni | |
GIARDINI | 1 | |
GARAGE | ||
ANNO | 2025 | |
RIFERIMENTO | BUS410 | |
IPE | 0.00/kWh/m2anno
| |
Home » Immobili » casa a schiera » Busa Di Vigonza – Casa A Schiera Al Grezzo Con 4 Camere
322.000,00 €
250.000,00 €
110.000,00 €
74.000,00 €
240.000,00 €
370.000,00 €