




























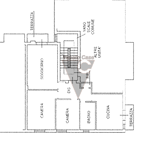
Ti presentiamo un affascinante appartamento nel cuore di Mestre di 95 mq, situato in una delle zone più ricercate della città. Questo immobile ristrutturato si trova al secondo piano e mezzo di un contesto composto da sole otto unità abitative.
L’appartamento è caratterizzato da un ingresso luminoso che conduce a una spaziosa cucina abitabile. Il soggiorno accogliente offre uno spazio perfetto per rilassarsi dopo una lunga giornata. La zona notte comprende due camere confortevoli.
Un bagno moderno è dotato di tutti i comfort necessari, mentre un pratico ripostiglio aggiunge ulteriore funzionalità all’immobile. Non perdere l’occasione inoltre di goderti un piacevole terrazzino dove potrai sorseggiare il tuo caffè mattutino in pieno relax.
Questo appartamento vanta anche una soffitta spaziosa e un garage al piano terra, assicurando ampio spazio per le tue esigenze quotidiane.
La posizione strategica dell’immobile ti consente di raggiungere facilmente i principali servizi come negozi, scuole e mezzi pubblici.
Se non vuoi farti sfuggire questa opportunità ti consigliamo di contattare subito la nostra agenzia per prenotare una visita.
TIPOLOGIA | ||
|---|---|---|
COMUNE | Venezia | |
ZONA | Mestre | |
CAMERE | 2 camere | |
BAGNI | 1 bagni | |
GIARDINI | ||
GARAGE | 1 | |
ANNO | 1960 | |
RIFERIMENTO | 206-DMES | |
IPE | 151.17/kWh/m2anno
| |
Home » Immobili » appartamento » Mestre – Bissuola – Appartamento Ristrutturato
199.000,00 €
119.000,00 €
390.000,00 €
66.000,00 €
128.000,00 €
170.000,00 €